wróć Dom na sprzedaż Wrocław – Strachowice, 220 m², Działka 1365 m²

galeria zdjęć

opis nieruchomości

Przestronny dom wolnostojący 220 m² na działce 1365 m² we Wrocławiu – Strachowice.
Idealny na rodzinę lub działalność. Świetna lokalizacja, duży potencjał aranżacyjny.
Zadzwoń!

Dom do remontu – pełna swoboda aranżacji i brak kompromisów projektowych

Doskonała oferta: dom na Firmę, klinikę chirurgii estetycznej lub dla rodziny!
Koniecznie zobacz i sprawdź, czy oferta spełni Twoje oczekiwania!
Dom wolnostojący o pow. 220 m2, działka 1365 m2 na sprzedaż.
Pełna własność gruntu.
Dojazd bezpośrednio z ulicy głównej, oddzielony pasem zieleni i nowoczesnej trasy pieszo-rowerowej.
Teren aktualnym mpzp, doskonały dojazd w kierunku autostrady, obwodnicy i lotniska. Komunikacja miejska w zasięgu kilku minut.

Budynek typu kostka, wykonany jako projekt indywidualny. Fundamenty z gazobetonu, wszystkie ściany murowane z cegły.
Dach płaski, pokryty papą, zaizolowany.
Stan budynku bardzo dobry, wnętrza z pewnością wymagają nowej aranżacji według potrzeb nabywcy.
Lokalizacja idealna dla każdego rodzaju działalności gospodarczej z uwagi na ekspozycję, bezpośredni dojazd oraz dostępność głównych szlaków komunikacyjnych.
Wymiary działki 19x 76 m
Na działce znajduje się magazyn 35 m2 z dodatkowym piętrem.

Parter: hall wejściowy 11,3 m2, pomieszczenia mieszkalne (pokój – z pełną infrastrukturą wentylacyjną jako kuchnia), 2 małe sypialnie, pomieszczenia gospodarcze i magazynowe, w tym pralnia, suszarnia, spiżarnia. Łącznie parter 110 m2.

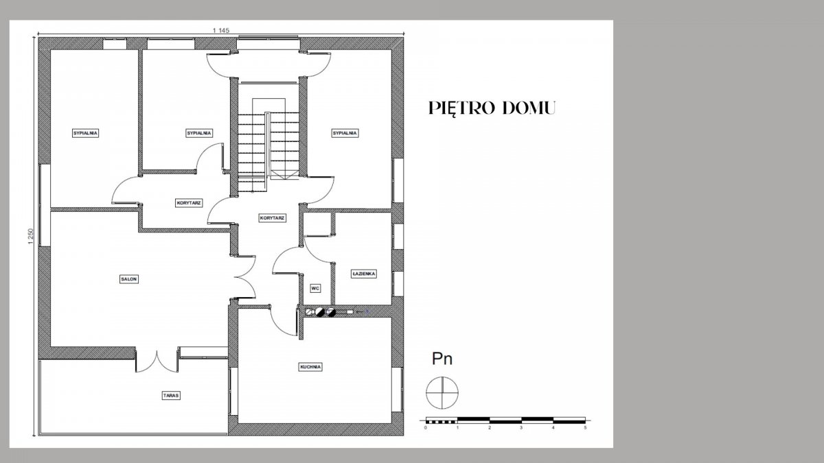
Pietro: osobna kuchnia 16,6 m2, łazienka 5,5 m2 i wc 1,1 m2, korytarz 7,8 m2, salon 22 m2, przedsionek 7,6 m2, gabinet 13,3 m2, sypialnia 10 z garderobą i  2 gabinety. Łącznie piętro 110 m2.

Garaż w bryle budynku 15 m2, Od wewnątrz zejście do piwnicy (ok. 25 m2), gdzie znajdują się pomieszczenia przeznaczone na piec i opał. Piec i ogrzewanie olejowe, system ogrzewania centralnego rozprowadzony po całym budynku. 

 

Cena ofertowa 1.350.000 zł do rozmów!


 

Treść niniejszego ogłoszenia nie stanowi oferty handlowej w rozumieniu Kodeksu Cywilnego.
Informacje dotyczące opisu ofert zamieszczonych na naszej stronie powstały na podstawie informacji udzielonych przez właściciela i oględzin nieruchomości.
Kopiowanie, przetwarzanie i rozpowszechnianie tych materiałów w całości lub w części bez zgody firmy MJ CONSULTING jest zabronione i stanowi naruszenie praw autorskich.
Treść ma charakter informacyjny i zalecamy ich osobistą weryfikację. Kontaktując się z biurem Klient wyraża zgodę na przetwarzanie danych osobowych zgodnie z przepisami art. 6 ust 1 lit. a Rozporządzenia Parlamentu Europejskiego i Rady (UE) 2016/679/UE z 27.04.2016 r. w sprawie ochrony osób fizycznych w związku z przetwarzaniem danych osobowych i w sprawie swobodnego przepływu takich danych oraz uchylenia dyrektywy 95/46/WE (ogólne rozporządzenie o ochronie danych) (Dz.Urz. UE L 119, s. 1) oraz wdrożenia RODO w naszej firmie. Klientowi przysługuje prawo do wglądu do swoich danych osobowych i ich aktualizacji.

szczegóły oferty - 15580/MJC/DS

Symbol15580/MJC/DS
Rodzaj nieruchomościDOM
Rodzaj transakcjiSPRZEDAŻ
Cena cena w innych walutach 1 350 000 PLN
MiejscowośćWROCŁAW
Dzielnica - osiedleSTRACHOWICE
UlicaGRANICZNA
Powierzchnia całkowita220 m²
Powierzchnia działki1 365 m²
Powierzchnia użytkowa200 m²
Forma własności działkiWŁASNOŚĆ
Rodzaj domuWOLNOSTOJĄCY
Rodzaj budynkuDOM
StandardDOBRY
Liczba pokoi6
Ilość pięter2
Wysokość kondygnacji [m]270 cm
OgrzewanieC.O. OLEJOWE
Podpiwniczenie /piwnicaCZĘŚC. PODPIWNICZ.